Trilocale in vendita

Casoria, Via Giuseppe di Vittorio - Casoria Arpino
€ 170.000
3 locali 3 locali
103 Mq 103 Mq
1 bagno 1 bagno

Trilocale in vendita

Casoria, Via Giuseppe di Vittorio - Casoria Arpino

Descrizione annuncio

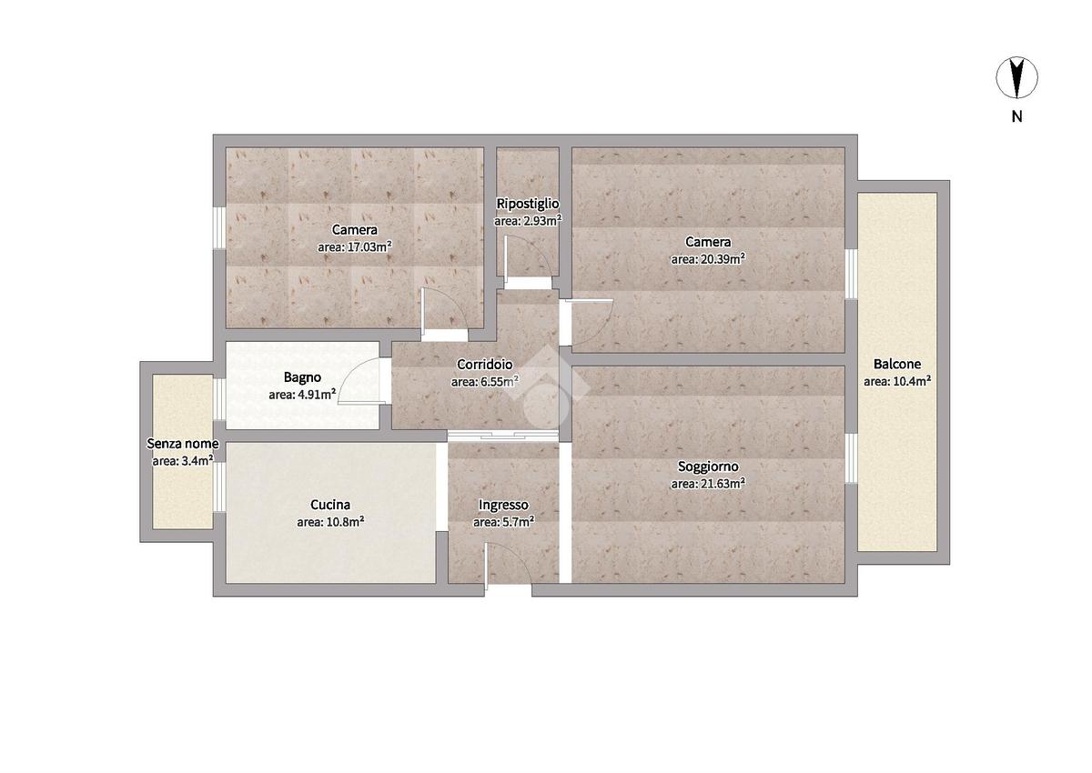
CASORIA ARPINO PARCO DEI PRINCIPI proponiamo in vendita un appartamento di 103 mq situato in un contesto signorile. L'immobile, posto ad un piano alto, offre una doppia esposizione parallela che garantisce luminosità e ventilazione naturale. La struttura in cemento armato è stata recentemente ristrutturata sia internamente che esternamente, assicurando un ambiente moderno e curato. L'edificio è dotato di ascensore, facilitando l'accesso ai piani superiori. L'appartamento si presenta da rimodernare e dispone di tre locali ben distribuiti, ideali per chi cerca spazi funzionali e accoglienti. Due balconi offrono ulteriori spazi all'aperto per momenti di relax. La posizione centrale permette di raggiungere facilmente i principali servizi e collegamenti. Completa la proprietà un comodo posto auto condominiale, una caratteristica preziosa in una zona così ben servita.

Visionabile tutti i giorni previo avviso telefonico.

Mostra tutto

Nelle vicinanze

Trasporto pubblico Trasporto pubblico
Botteghelle
Botteghelle
940 m
Poggioreale
Poggioreale
1,9 Km
Emiciclo di Poggioreale
Emiciclo di Poggioreale
2,1 Km
Trasporto pubblico
1,4 Km
Via Parise
Via Parise
2,0 Km
Ricariche auto elettriche Ricariche auto elettriche
Lidl Napoli Arpino
350 m
Scuole Scuole
Scuole
2,2 Km
Scuole
2,4 Km
51 Circolo Didattico Scuola El Re Statale A.Oriani
2,7 Km
Scuole Pubbliche
2,9 Km
Farmacia Farmacia
Farmacia
2,3 Km
Farmacia Eredi dottor Bruno
2,8 Km
Ospedali Ospedali
Ospedali
2,6 Km
Ospedale San Giovanni Bosco
2,8 Km
Ospedale Evangelico Villa Betania
2,9 Km
Supermercati Supermercati
Maxystore Deco
1,4 Km
Negozi Negozi
Negozi
2,2 Km
Bar Bar
DUBL food & bubbles
2,2 Km
Cuore Nero
2,3 Km
Air Café
2,5 Km
Bar
2,9 Km
Ristoranti Ristoranti
Pizzeria
2,1 Km
La Casereccia
2,2 Km
Ristoranti
2,3 Km
La Loggetta
2,4 Km
pizzeria pizzé
3,0 Km
Mostra tutto

Caratteristiche

Rif.:
61177209
Piano:
6 di 6 con ascensore (Piano alto)
Posti auto:
1
Balconi:
2
Camere da letto:
2
Arredamento:
Assente
Mostra tutto
Prezzo Prezzo
€ 170.000
Rata mutuo Rata mutuo
€ 808 / mese
Spese annue Spese annue
€ 720
Proponi il tuo prezzoProponi il tuo prezzo

Classe Energetica

G
G
G
G
G
G
G
G
G
EP globale non rinnovabile:
127.00 kW h/m² anno
EP globale rinnovabile:
127.00 kW h/m² anno
EP invernale del fabbricato:
EP estiva del fabbricato:
Anno di costruzione:
1965
Riscaldamento:
Autonomo
Tipo impianto:
A stufa
Tipo alimentazione:
GPL

Ti interessa visionare l'immobile?

Fissa un appuntamento  Fissa un appuntamento

Richiedi informazioni

Clicca su Leggi per aprire l'informativa
* Questi campi sono obbligatori

Calcola il tuo mutuo

Semplice e senza impegno
Anticipo

( % )
Mutuo

( % )

pochi semplici passi

inserisci i tuoi dati
Questionario completato
Grazie per aver richiesto un appuntamento senza impegno con un nostro Consulente del Credito e Assicurativo.

Hai inserito correttamente tutti i dati necessari e a breve riceverai una e-mail con un link da convalidare per inviare i tuoi dati.
Affiliato
Studio Casoria-Arpino D.I.
Via Benedetto Croce, 33 80026 Casoria (NA)

Il nostro staff


  • Secondiano Orefice
    Affiliato
Via Benedetto Croce, 33 80026 Casoria (NA)
Zona: Cittadella Arpino
Mostra su mappa
Orari: dal Lunedì al Venerdì dalle 9:00 alle 13:30 e dalle 16:00 alle 20:00; Sabato dalle 9:00 alle 13:30
Affiliato
Studio Casoria-Arpino D.I.
Via Benedetto Croce, 33 80026 Casoria (NA)

2026 Tecnocasa Franchising S.p.A. - P. IVA 08365160152 - Via Monte Bianco 60/A 20089 Rozzano (MI). Ogni agenzia ha un proprio titolare ed è autonoma. Privacy policy | Policy utilizzo | Cookie policy